Leave a Message

Thank you for your message. We will be in touch with you shortly.

Whispering Hills

Warren, New Jersey's first affordable housing community

Whispering Hills Apartment Amenities

  • Fully Equipped Kitchen: Electric stove/oven, Refrigerator, Dishwasher
  • Washer/Dryer-Ready Hookups
  • Central Air Conditioning
  • Individually Controlled Gas Heat
  • Patio or Balcony
  • Wall to Wall Carpeting
  • 24/7 MAINTENANCE
  • Snow removal
  • Garbage Removal via Dumpster & Recycling
  • On-site Parking
  • No maintenance fees
Sorry, pets are not permitted.
 

Explore our Apartments

One Bedroom/One Bath Rental Apartments in Warren

Whispering Hills has 9 low-income and 1 moderate-income one-bedroom unit.

  • 616 Square Feet
  • Living Room 11’4″ x 16’8″
  • Dining Room 8′ x 7’8″
  • Kitchen 8′ x 8′ with pass-through access to Dining Room
  • Bathtub/Shower combination
  • Two large bedroom closets
  • Exterior patio/deck with storage

Occupancy Requirements

One-bedroom units are limited to 1-2 tenants.

 

Two Bedroom/One Bath Rental Apartments in Warren

Whispering Hills has 16 low-income and 24 moderate-income two-bedroom units.

  • 787 Square Feet
  • Living Room 14’8″ x 12′
  • Dining Room 8′ x 9′
  • Kitchen 8’4″ x 8′ with pass-through access to Dining Room
  • Master Bedroom 10′ x 12′ with walk-in closet
  • Second Bedroom 10’x 9′
  • Exterior patio/deck with storage

Occupancy Requirements:

Two-bedroom units are limited to 1- 4 tenants.

 

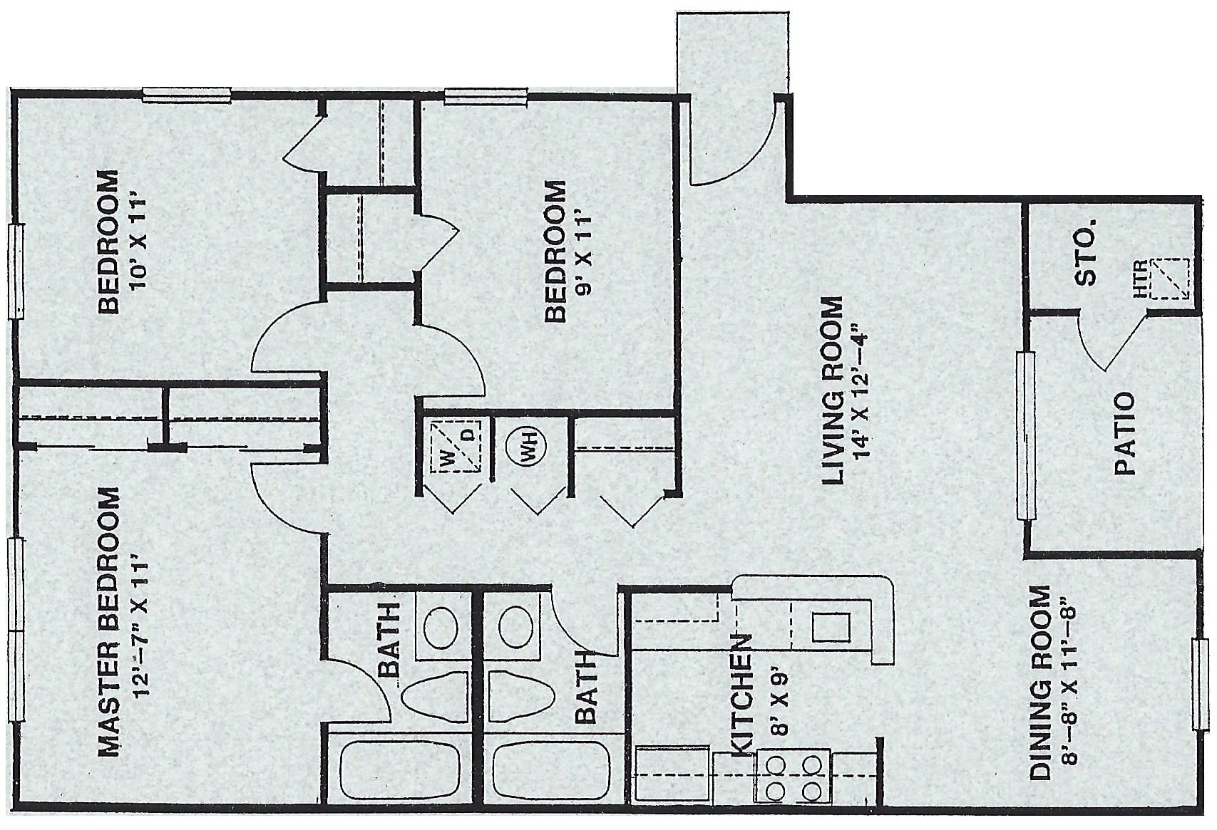
Three Bedroom/Two Bath Rental Apartments in Warren

Whispering Hills has 5 low-income and 5 moderate-income three-bedroom units.

  • 982 Square Feet
  • Living Room 14′ x 12’4″
  • Dining Room 8’8″ x 11’8″
  • Kitchen 8′ x 9′ opening to the dining room
  • Master Bedroom 12’7″ x 11′ with two large closets and private bathroom
  • Second Bedroom 10’x 11′
  • Third Bedroom 9′ x 11′
  • Exterior patio/deck with storage

Occupancy Requirements:

Three-bedroom units are limited to 2-6 tenants.

Connect With Us

Whether it is an extraordinary custom home, a maintenance free rental apartment or luxury condominium, affordable housing or a resort property, Ferruggia Associates have the diverse experience and deep knowledge to serve your real estate needs.

CONTACT US